Neubau 5 Wohnhäuser - Roggwil

Informationen

Neubau 5 Wohnhäuser - Roggwil

Direktauftrag, Projektierung – Ausführung – Bauleitung

2026 - 2027
 

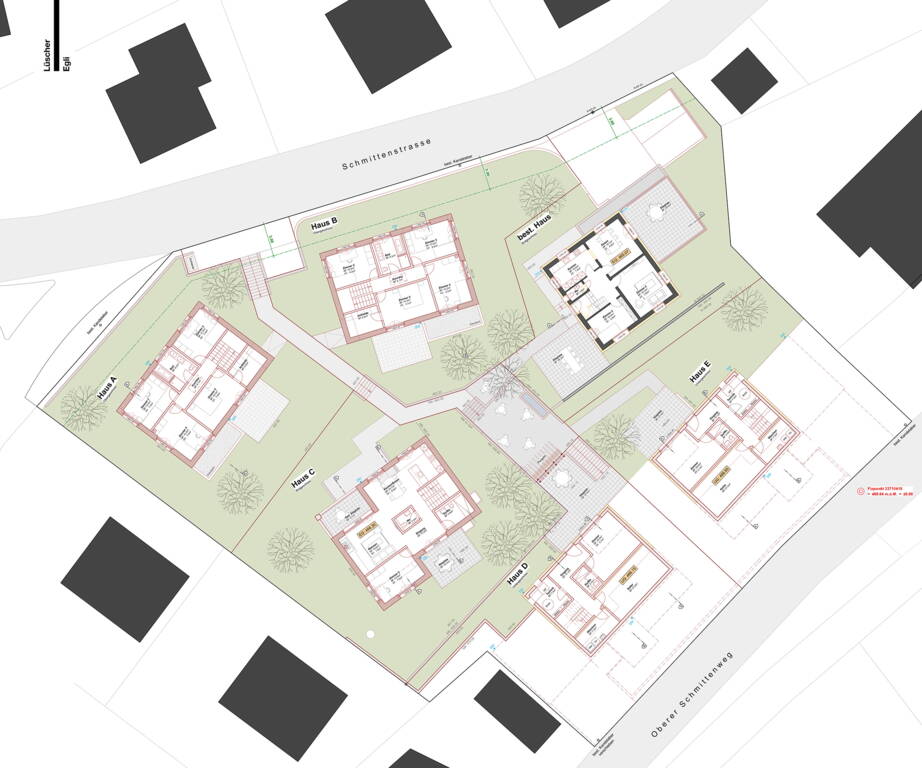
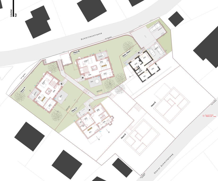
An der Schwelle zwischen Vergangenheit und Zukunft, am Rand des historisch gewachsenen Schmittenquartiers von Roggwil, entstehen fünf neue Einfamilienhäuser. Dieser Ort, mit seiner einzigartigen Hanglage, eröffnet einen unvergleichlichen Blick auf das Jura-Gebirge. Die Häuser orientieren sich in ihrer Formensprache an den Höhenlinien des Geländes und fügen sich harmonisch in das bestehende Quartier ein. Die offene und fliessende Raumaufteilung im Erdgeschoss verbindet Küche und Wohnzimmer und schafft so ein angenehmes Raumgefühl. Der Balkon wird zum Fenster ins Jura, während der nach Süden ausgerichtete Sitzplatz den privaten Raum nach aussen öffnet und den Garten in das Wohnen integriert. Das Baubewilligungsverfahren befindet sich derzeit in vollem Gange. Wir freuen uns, den Verkaufsstart der Einfamilienhäuser im Verlauf des Novembers 2025 bekannt zu geben. Für weitere Informationen steht wir Ihnen gerne zur Verfügung.

Standort: Schmittenstrasse 29, 4914 Roggwil BE

Zoom: schmittenstrasse_visu_5.jpg
Zoom: schmittenstrasse_visu_1.jpg
Zoom: schmittenstrasse_2.jpg
Zoom: schmittenstrasse_1.jpg
Zoom: schmittenstrasse_visu_2.jpg
Zoom: schmittenstrasse_ug-esh.jpg
Zoom: schmittenstrasse_eg-1.ug.jpg
Zoom: schmittenstrasse_og-eg-ug.jpg
Zoom: schmittenstrasse_estrich-og-eg.jpg
Zoom: schmittenstrasse_dachaufsicht-estrich-og.jpg

Weitere Objekte

Informationen